Skip to content Skip to sidebar Skip to footer

Questions On Sewage Treatment Plant Design

Hey friend! Today, I want to talk to you about sewage treatment and the importance of treating wastewater. It's a very crucial process that ensures the safety and cleanliness of our environment. So let's dive in and learn all about it!

Treating Waste Water - Complete Lesson about Sewage for New AQA Chemistry SOW 2016 Onwards

First up, we have a fantastic lesson resource for you. This comprehensive lesson is designed for the new AQA Chemistry syllabus from 2016 onwards. It covers everything you need to know about sewage treatment and is a great way to enhance your understanding of the topic.

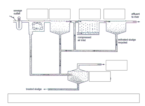
A captivating image showing the sewage treatment process

Have you ever wondered what happens to all the dirty water that goes down your drains or toilets? Well, that's where sewage treatment comes into play. When you flush the toilet or let the water go down the drain, it becomes wastewater, also known as sewage.

Now, if this sewage were to be left untreated, it could have detrimental effects on our environment and public health. That's why it is extremely important to treat wastewater effectively before releasing it back into the environment.

The image above beautifully captures the sewage treatment process. Let's walk through the steps involved:

Step 1: Preliminary Treatment

The first step in sewage treatment is known as preliminary treatment. During this stage, large debris and solids are removed from the wastewater through a process called screening. This ensures that any large objects, such as plastics or tree branches, are filtered out.

Step 2: Primary Treatment

After the preliminary treatment, the wastewater moves on to the primary treatment stage. Here, the sewage is held in large settlement tanks, allowing the solids to settle at the bottom. The settled solids, also known as sludge, are then removed and sent for further treatment.

An informative image showcasing the primary treatment process

The image above provides an insight into the primary treatment process. As the sewage flows into the settlement tanks, the heavier solids sink to the bottom, forming a layer of sludge. Meanwhile, the lighter substances, such as grease and oils, float to the surface and are skimmed off.

Step 3: Secondary Treatment

Once the primary treatment is completed, the wastewater undergoes secondary treatment. This stage aims to remove any dissolved organic matter and microorganisms that may still be present in the water.

Secondary treatment often involves the use of biological processes, such as activated sludge or trickling filters. These processes use microorganisms to break down and consume the remaining organic matter in the water, effectively cleaning it.

It's incredible how nature's little helpers, the microorganisms, work diligently to purify our wastewater.

Step 4: Tertiary Treatment

After the secondary treatment, some wastewater treatment facilities also undergo tertiary treatment. This step ensures that any remaining impurities, such as excess nutrients, pathogens, or trace chemicals, are removed from the water.

Advanced filtration methods, like sand filters or chemical disinfection, are often used during tertiary treatment to achieve the desired level of water purity.

Step 5: Discharge or Reuse

Once the wastewater has successfully undergone preliminary, primary, secondary, and possibly tertiary treatment, it is ready for either discharge or reuse.

If the treated water meets the required environmental standards, it can be safely discharged into nearby rivers, lakes, or oceans. This ensures that the treated wastewater does not harm aquatic life or contaminate our water sources.

Alternatively, in water-scarce regions, the treated water can be further processed and reused for various non-potable purposes like irrigation, industrial processes, or groundwater replenishment.

Isn't it amazing how we can turn something as dirty as sewage into a valuable resource?

In conclusion, sewage treatment is vital for maintaining a clean and healthy environment. It protects our water bodies, prevents the spread of diseases, and conserves water resources.

I hope this post has given you a better understanding of how wastewater is treated and why it is so important. Next time you flush the toilet or let the water go down the drain, remember the impressive journey that sewage goes through to become safe and clean again.

If you are looking for Sewage treatment | Teaching Resources you've visit to the right web. We have 35 Pictures about Sewage treatment | Teaching Resources like TOP 250+ Sewage Treatment Plant Interview Questions and Answers 14 January 2023 - Sewage, 35 Wastewater Treatment Worksheet Answers - Worksheet Info 2021 and also Lendlease to use $15m state loan to build Shoreline sewerage plant | Gold Coast Bulletin. Read more:

Sewage Treatment | Teaching Resources

Sewage treatment | Teaching Resources www.tes.com

treatment sewage ppt

Compilation | Sewage Treatment | Environmental Issues | Free 30-day Trial | Scribd

Compilation | Sewage Treatment | Environmental Issues | Free 30-day Trial | Scribd www.scribd.com

Solved Question 6 A Wastewater Sample Was Collected After | Chegg.com

Solved Question 6 A wastewater sample was collected after | Chegg.com www.chegg.com

wastewater solved sample problem collected question screening been questions

Review Questions

Review Questions wps.pearsoned.com.au

label questions review correct missing diagram wps

Sewage Treatment Plant Design - Useful Gardening Tips

sewage treatment plant design - Useful Gardening Tips www.amulch.com

Solved Wastewater Treatment And Disposal Last Modified May | Chegg.com

Solved Wastewater Treatment and Disposal Last Modified May | Chegg.com www.chegg.com

wastewater disposal

Sewage Treatment Worker: Test Preparation Study Guide, Questions & Answers By National Learning

Sewage Treatment Worker: Test Preparation Study Guide, Questions & Answers by National Learning www.alibris.com

answers questions worker sewage preparation treatment study test guide alibris corporation learning national

Problem Solved: BOD Problem - Wastewater Math - YouTube

Problem Solved: BOD Problem - Wastewater Math - YouTube www.youtube.com

bod wastewater math solved problem

Wastewater Treatment - Primary Treatment | Britannica.com

Wastewater treatment - Primary treatment | Britannica.com www.britannica.com

treatment sewage process primary sludge secondary activated tank britannica plants plant water types management using wastewater septic technology public waste

Journey Of My Engineering: Study Of Waste-Water Treatment Plant

Journey of My Engineering: Study of Waste-Water Treatment Plant gaurankpatil.blogspot.com

treatment plant water waste diagram process simple wastewater schematic typical municipal journey engineering study procedure

Sewage Treatment Process In Which Part Of Decomposer Bacteria Is Recycled Into Starting - NEETLab

Sewage treatment process in which part of decomposer bacteria is recycled into starting - NEETLab neetlab.com

bacteria decomposer

10 Common Question Of Waste Water Treatment (हिंदी में) || Sewage Treatment Plant Questions

10 Common Question of Waste Water Treatment (हिंदी में) || Sewage Treatment Plant Questions www.youtube.com

Sewage Pollution Is Not Responsible For - NEETLab

Sewage pollution is not responsible for - NEETLab neetlab.com

sewage responsible

Treating Waste Water - Complete Lesson About Sewage For New AQA Chemistry SOW 2016 Onwards By

Treating Waste Water - complete lesson about sewage for new AQA Chemistry SOW 2016 onwards by www.tes.com

sewage aqa lesson chemistry sow treating onwards waste complete water tes activity

Sample Ww Questions | Sewage Treatment | Waste Management

Sample Ww Questions | Sewage Treatment | Waste Management www.scribd.com

What Is The Difference Between Wastewater And Sewage? | Express Wastewater Solutions

What is the difference between wastewater and sewage? | Express Wastewater Solutions www.expresswastewater.com.au

sewage wastewater difference

Waste Water Treatment Home Learning Worksheet GCSE | Teaching Resources

Waste Water Treatment Home Learning Worksheet GCSE | Teaching Resources www.tes.com

gcse

Wastewater Treatment Quiz Answers | Sewage Treatment | Microorganism

Wastewater Treatment Quiz Answers | Sewage Treatment | Microorganism www.scribd.com

wastewater

Science Grade 7 Questions | Sewage Treatment | Flowers

science grade 7 questions | Sewage Treatment | Flowers www.scribd.com

35 Wastewater Treatment Worksheet Answers - Worksheet Info 2021

35 Wastewater Treatment Worksheet Answers - Worksheet Info 2021 eddiefreecbd634.blogspot.com

wastewater sewage biology cbse

Our Business

Our business www.unitywater.com

Solved (12) Question 1 (Wastewater Treatment) 1. A Portion | Chegg.com

Solved (12) Question 1 (Wastewater Treatment) 1. A portion | Chegg.com www.chegg.com

wastewater

Answering Your Questions To Raise Proper Wastewater Treatment Awarene…

Answering Your Questions to Raise Proper Wastewater Treatment Awarene… www.slideshare.net

wastewater answering

5.7 Your Sewage Facilities

5.7 Your Sewage Facilities environmentallyhealthymayra.blogspot.com

stp sewage sewer wtp swage

TOP 250+ Sewage Treatment Plant Interview Questions And Answers 14 January 2023 - Sewage

TOP 250+ Sewage Treatment Plant Interview Questions and Answers 14 January 2023 - Sewage www.wisdomjobs.com

interview sewage

Sewage Treatment - Wikiwand

Sewage treatment - Wikiwand www.wikiwand.com

Sewage Questions New.pdf | Sewage Treatment | Sanitary Sewer

sewage questions new.pdf | Sewage Treatment | Sanitary Sewer www.scribd.com

sewage

(PDF) Waste Water (Sewage) Treatments

(PDF) Waste Water (Sewage) Treatments www.researchgate.net

sewage

CBSE 7th Waste Water Story Management Solved Sample Questions | Sewage Treatment | Sanitary Sewer

CBSE 7th Waste Water Story Management Solved Sample Questions | Sewage Treatment | Sanitary Sewer www.scribd.com

waste

Lendlease To Use $15m State Loan To Build Shoreline Sewerage Plant | Gold Coast Bulletin

Lendlease to use $15m state loan to build Shoreline sewerage plant | Gold Coast Bulletin www.goldcoastbulletin.com.au

Sewage Treatment | Teaching Resources

Sewage treatment | Teaching Resources www.tes.com

sewage wastewater promotiontablecovers

CBSE Papers, Questions, Answers, MCQ: Class 7 - Science - CH18 - Wastewater Story

CBSE Papers, Questions, Answers, MCQ: Class 7 - Science - CH18 - Wastewater Story cbse.eduvictors.com

wastewater cbse involved mcq

Frequently Asked Sewage Backup Questions Sewage-Backup-Questions

Frequently Asked Sewage Backup Questions Sewage-Backup-Questions unitedwaterrestoration.com

backup sewage questions frequently asked

The Importance Of Wastewater Treatment - Project | ODS

The Importance of Wastewater Treatment - Project | ODS www.outdoordesign.com.au

wastewater

What Is Sewage Treatment ? Explain Its Working With A Suitable Diagram - Brainly.in

What is sewage treatment ? Explain its working with a suitable diagram - Brainly.in brainly.in

sewage sludge disposal explain

Treatment sewage process primary sludge secondary activated tank britannica plants plant water types management using wastewater septic technology public waste. Sewage treatment plant design. Backup sewage questions frequently asked


Post a Comment for "Questions On Sewage Treatment Plant Design"